Desaparecidos en Argentina CCDs

Club Atlético


Club Atlético


Plan del Club Atlético


Plan del Club Atlético

 

Club Atlético

El Club Atlético dependía de la Policía Federal y del Ejército.

Descripción (Nunca Más)

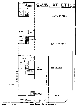
Primer nivel: Salón azulejado, puertas de vidrio, un escritorio grande y otro pequefio; en ellos se identificaba y asignaba un número a cada detenido. Puertas de vidrio. Acceso disimulado al subsuelo.

Subsuelo: Sin ventilación ni luz natural. Temperatura entre 40 y 45 grados, en verano. Mucho frío en invierno. Gran humedad. Las paredes y piso rezumaban agua continuamente. La escalera llevaba a una sala provista de una mesa de ping pong que usaban los represores. Al costado, una salita de guardia. Dos celdas para incomunicados. Una sala de torturas y otras para enfermería. Cocina, lavadero y duchas, éstas con una abertura que daba a la superficie extema por donde los guardias observaban el ano de las mujeres Otro sector pata depositar el botín de guerta.

Celda llamada "leonera", con tabiques bajos que separaban boxes de 1,60 m por 0,60 m. En un sector, 18 celdas, en otro, 23. Todas de 2 m por 1,60 m y una altura de 3 a 3,50 m. Tres salas de tortuta, cada una con una pesada mesa metálica. Colchones pequeños manchados de sangre y transpiración, de goma espuma.


Este centro clandestino de detención funcionó desde mediados de 1976 hasta el mes de diciembre de 1977. Fue demolido poco después, pero de los relatos de algunos testimoniantes y otros informes obtenidos por la CONADEP, pudo establecerse que estaba instalado en un predio ubicado entre las calles Paseo Colón, San Juan, Cochabamba y Azopardo.

Las personas alojadas en dicho centro llegaban en el interior de vehículos particulares severamente tabicadas. Al llegar al lugar eran sacadas de los automóviles y transportadas violentamente - casi en vilo - por una escalera pequeña y un lugar subterráneo, sin ventilación.

Así surge de los dichos de Carlos Pachecho (Legajo N° 423), Pedro Miguel Antonio Vanrell (Legajo N° 1132) Daniel Eduardo Fernández (I egajo N° 1310), José Angel Ulivarri (Legajo N° 2515) y otros, comcidiendo casi todos en que al llegar se abría un portón. Eran desnudados sin excepción, hombres, mujeres, jóvenes y ancianos y revisados, mientras eran empujados y maltratados. Se les retiraban todos sus efectos personales, que jamás les fueron devueltos. «Tu nombre de ahora en adelante será K 35, ya que para los de afuera estás desaparecido...», relata Miguel D"Agostino.

De allí eran llevados al quirófano o sala de torturas y el miedo se habla convertido en terror y desesperación.

«Durante el interrogatorio pude escuchar los gritos de mi hermano y de su novia, cuyas voces pude distinguir perfectamente"" (Nora Strejilevich - Legajo N° 2535).

Una vez que se detenía momentáneamente la primera sesión de «ablande» algunos eran llevados casi a la rastra a la «enfermería» y luego a la «leonera» o directamente a los «tubos». En los tobillos se les colocaban unas cadenas, cerradas con candados de cuya enumeración era imprescindible acordarse, ya que, si no, corrían el riesgo, cuando eran trasladados al baño, de no obtener las llaves correspondientes que los abrieran. Entre el tabique que impedía casi totalmente la visión, los grillos en los pies, además de la cara y de la partes más visibles del cuerpo llenas de hematomas, magulladuras y heridas abiertas - amén de la ropa que se le asignaba a cada uno - la imagen de estos seres sometidos a condiciones infrahumanas es un recuerdo lacerante para cada uno de los escasos sobrevivientes.

«Algunos pasaban por la leonera, permanecían dos o tres días y salían en libertad, les decían "perejiles"... eran aquellos que "chupaban" y que no les servían para nada» (Migud Angel D"Agostino - Legajo N° 3901).

 

«Después de pasados los primeros días, me llevaron a una celda, y pude ir adaptándome poco a poco a esa vida, aprendiendo cómo tenía que vivir, qué era lo que podía hacer y lo que no podía. A pesar de que permancia siempre tabicada y de me sacaban tres veces por día para ir al baño, pude hacerme una idea general de cómo era el lugar donde "vivía"(...)

El campo, que se hallaba en un subsuelo, tenía dos secciones de celdas, que estaban enfrentadas en un pasillo muy estrecho: de un lado los pares y del otro los impares. Para sacarnos al baño abrían las puertas una por una - cada uno de nosotros tenía que estar de pie cuando se abría la puerta - y luego desde la punta del pasillo el guardia gritaba el número de las celdas, allí nosotros nos dábamos vuelta y cada uno se tomaba de los hombros del que tenía delante, formando un "tren" que era conducido por un guardia.» (Ana María Careaga, Legajo N° 5139).

 

El «campo» tenía lugar para unas doscientas personas, y según refieren los liberados durante su funcionamiento habría alojado más de 1.500 personas. Este dato lo deducen de las letras que precedían al N°, cada letra encabezaba una centena. Por los testimonios asentados en la CONADEP, se llegó a la letra X en noviembre de 1977.

Los grupos de tareas con base en este C C.D. operaban fundamentalmente en Capital y Gran Buenos Aires, «pero la impunidad que poseían les permitía ir más allá de esos límites, como en el secuestro de Juan Marcos Hermann, traído desde San Carlos de Bariloche al Atlético» (Conferencia de prensa del 22-8-84).

El personal integrado por las fuerzas de seguridad actuaba en contacto con otros C.C.D., como la ESMA y Campo de Mayo.

El promedio de secuestros era de 6 ó 7 por día, pero hubo oportunidades en que ingresaban hasta 20. A intervalos regulares, un grupo importante de detenidos partía con destino desconocido. Dice D"Agostino:

«En los tubos el silencio era total. En las vísperas de los traslados masivos en los que se llevaba alrededor de veinte personas, ese silencio se acentuaba...»

(................................)

«A veces "hablábamos" dando pequeños golpes en la pared intermedia que dividía los tubos, o al tocarle el hombro al compañero que iba adelante nuestro en el "trencito". Todos esperaban quietos y en silencio que los nombraran, querían salir de allí, todavía quedaba alguna esperanza. El traslado, más que miedo, encerraba cierta expectativa...».

  • Memoria del Club Atlético
  • Juicio Atlético - Banco - Olimpo
  • Juicio Represores Atlético - Banco - Olimpo

    Desaparecidos vistos en el Olimpo - Banco - Atlético

    Represores

    Represores de El Olimpo - El Banco - Club Atlético

    CCDs

    Estuviste en el CCC Club Atlético? Si es así, por favor envianos tu testimonio.




  • Proyecto Desaparecidos
Argentina


    Presentes | Represores | Documentos | Voces | Blog | Últimos Documentos | Enlaces

    Proyecto Desaparecidos Busca Notas Preguntas Frecuentes correo